Neubau

MEHR ERFAHREN
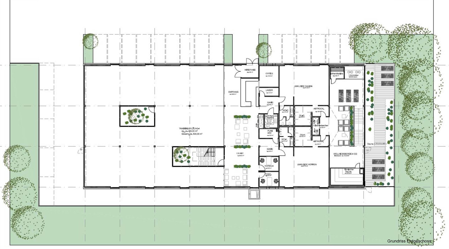
Dieses modulare Hallenbaukonzept „Greensports“ bietet attraktive Fitnessflächen mit nachhaltigem und energieeffizientem Anspruch.
Einzelne Module, wie Wellnessbereich und Kursraum sowie Teile der Trainingsfläche können in Form einer ganzen Achsbreite hinzugenommen oder weggelassen werden.
Die Idee ist, das modulare System kostengünstig und dennoch individuell anpassbar umzusetzen.
Auf die Weise kann sich jeder Bauherr mit der Anlage identifizieren.
Die Stadt Zwönitz beauftragte uns 2018 mit der Vorentwurfsplanung für einen Erweiterungsbau. Die bestehende Schwimmhalle sollte über einen gläsernen Verbindungsgang als Kupplungselement …
…mit der Sport- und Wellnessfläche im Neubau verbunden werden. Die beiden Gebäudeelemente haben unterschiedliche Winkel, die sich auf den Bestand und die Grundstückskubatur beziehen.
Dadurch ergeben sich spannende Durchdringungen zwischen dem eingeschossigen und dem zweigeschossigen Gebäudeteil. Außerdem können die Terrassen für diverse Fitness- und Kursaktivitäten genutzt werden.
Für AMG haben wir 2014 eine Corporate Fitnessanlage mit Gastronomie und Seminarräumen als Neubau neben dem Logistikzentrum geplant.
Die Topographie wird vom Gebäude aufgenommen und gewinnbringend in Form von Splitleveln umgesetzt.
In den unteren Ebenen sind der Fahrradraum mit Übergang zu den Duschen in den Umkleiden sowie die Technikflächen untergebracht.
Die Splitlevels rechts und links des zentralen Atriums ermöglichen Sichtbeziehungen über alle Ebenen. Leider kam es nicht zur Umsetzung auf dem Grundstück neben dem Logistikzentrum, sondern in anderer Form an anderer Stelle.



