Corporate Fitness
BONAVA in Fürstenwalde

MEHR ERFAHREN
Der Bauprojektentwickler BONAVA in Fürstenwalde bei Berlin bietet schon seit längerem für seine Mitarbeiter ein betriebseigenes Fitnessstudio an.
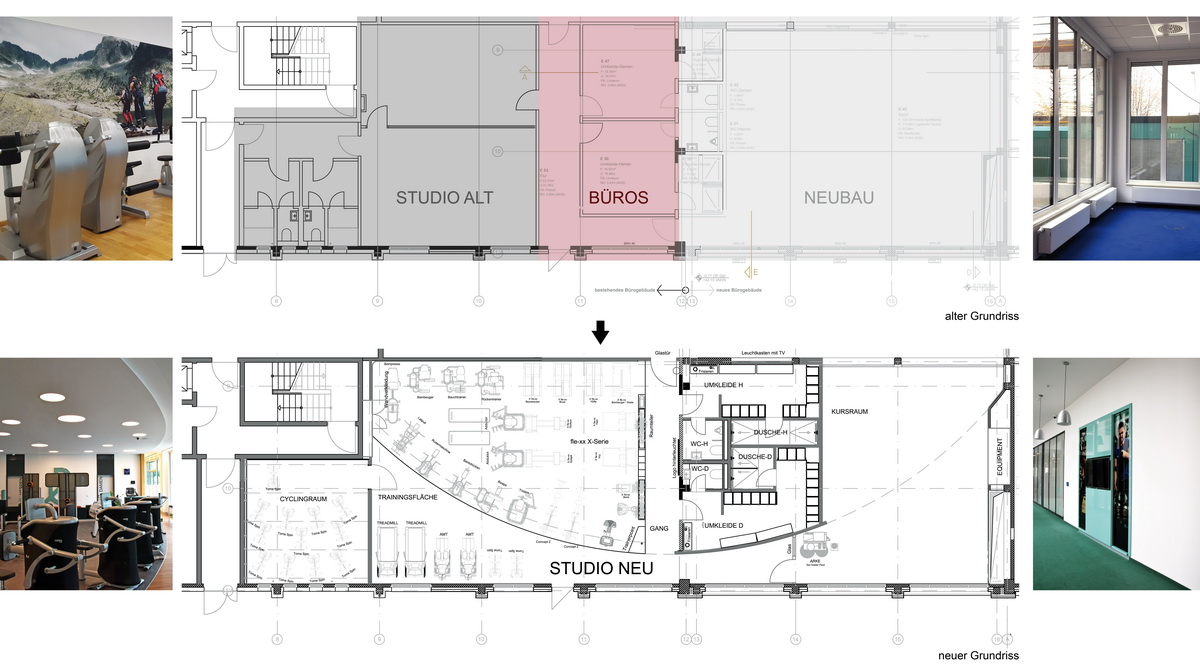
Da das Studio aus allen Nähten platzte und sich im angrenzenden Neubau die Gelegenheit, für eine Erweiterung bot, wurden aus knapp 105 m² eine Gesamtfläche von 305 m². Hier stehen nun ein Cyclingraum, eine hochmoderne Trainingsfläche, großzügige Umkleiden und ein Kursraum zur Verfügung.
Nachdem der Entwurf abgestimmt war, visualisierten wir das Studio in den CI-Farben. Oben sind die Renderings zu sehen und unten das fertige Ergebnis.
Das Highlight für die Mitglieder ist der futuristische Cyclingraum im glänzenden Soft-Edge-Design mit LED-Stripes. Auf dem Bildschirm kann man Tour de France-Rennen oder sonstige attraktive Strecken fahren.
Bemerkenswert ist, dass wir dafür die ursprüngliche Umkleide mit WCs und Duschen genutzt haben. Dieser Bereich war gar nicht mehr als Teil des Studios geplant und ist zu einem absoluten Hingucker geworden.
Auf Grundlage der Visualisierung erstellten wir in Abstimmung mit der TGA-Planung einen Deckenspiegel mit den diversen Materialqualitäten, Angaben zu Deckenhöhen und natürlich den Leuchten mit Herstellerangaben.
Für Wände und Böden gibt es einen weiteren Materialplan mit den bemusterten Belägen.
Das türkisgrüne Band zieht sich durch alle Räume. Auf der rechten Seite hinter der Wandverkleidung sind Lüftungsschächte integriert und auf der linken Seite haben wir die Flächen als unauffälligen Equipmentschrank genutzt.
Für den Eingangsbereich entwickelten wir einen Raumteiler als Abtrennung zum Dehnbereich. Dieser beinhaltet eine Getränkestation, eine Sitzbank sowie einen Trainerpoint für Tests und Beratungen. Wir erstellten die Unterlagen für die Ausschreibung der Möblierung und Wandverkleidungen. Die Schreinerei Schüller aus NRW sorgte für die hervorragende Umsetzung.
In diesem stimmigen Ambiente macht es Spaß zu trainieren und die Motivation der Mitarbeiter steigt.



