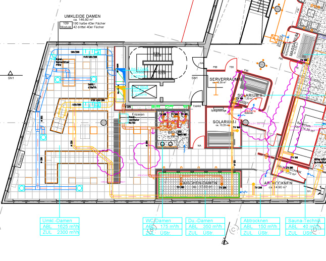
TGA-Planung
technische Gebäudeausrüstung vom Profi

KerShine Interior Design kümmert sich nicht nur um das Design und die Funktionalität Ihrer Fitness- und Wellnessanlagen, sondern ebenfalls auf Wunsch auch um die technischen Features, allen voran eine gute Lüftungsanlage. Schon in den ersten Zügen der Konzept-Erstellung beziehen wir die TGA-Planung ein. Die frühzeitige Zusammenarbeit mit unseren Partnern in der technischen Gebäudeausrüstung ist ausschlaggebend für die gestalterische Integration der Technik.
Unsere kreative Arbeit schließt die technische Gebäudeausrüstung nicht aus, sondern betrachtet sie als festen Bestandteil der Vorplanung und Entwurfsplanung. Als erfahrenes Innenarchitekturbüro wissen wir, dass eine moderne technische Ausstattung für den Erfolg Ihrer Anlage genauso maßgebend ist, wie ein ansprechendes Design.
Der Fitnesskunde erwartet heutzutage in frischer, sauberer und angenehm temperierter Luft zu trainieren, ohne dass es zu Zugerscheinungen kommt.
Für die technische Umsetzung einer Fitness- und Wellnessanlage ist sehr viel spezifisches Know-how in dem Bereich notwendig, weil die Anforderungen z.B. für Sanitärinstallationen und Raumlufttechnik ganz andere sind als für Verkaufsstätten oder im Wohnungsbau. Dieses fachspezifische Wissen haben wir und unsere Partner über viele Jahre aufgebaut, hiervon können Sie profitieren, wenn Sie uns auch für die TGA-Planung beauftragen.
Neben Partnern für die TGA-Planung haben wir zudem Partner für die Erstellung von Brandschutzkonzepten.
Mit der Umsetzung von Brandschutzanforderungen kann man in einer frühen Entwurfsphase kreativ umgehen. So wirkt die Integration von Brandschutzmaßnahmen später nicht aufgesetzt, sondern fügt sich hervorragend in den Entwurf ein.



